Содержание
Схемы комплектных трансформаторных подстанций КТП
Содержание
Классификация электроустановок
Оборудование классифицируется по конструктивным элементам, месту расположения, принципиальным схемам и используемым устройствам. По месту расположения электроустановки могут быть закрытыми (ЗКТП) и открытыми (ОКТП). Открытое оборудование устанавливается непосредственно на площадках, а закрытые — внутри помещений и цехов.
По виду сборки КТП бывают:
- блочные электроустановки в корпусе из бетона;
- в корпусе, изготовленном из сэндвич-панелей;
- в металлическом корпусе.
По способу обслуживания КТП могут быть с коридором или без него. Электроустройства низшего напряжения разделяются на тупиковые (КТПТ) и проходные (КТПП). Эти оба вида относятся к подстанциям киоскового типа, то есть они считаются передвижным оборудованием.
Оформить заявку
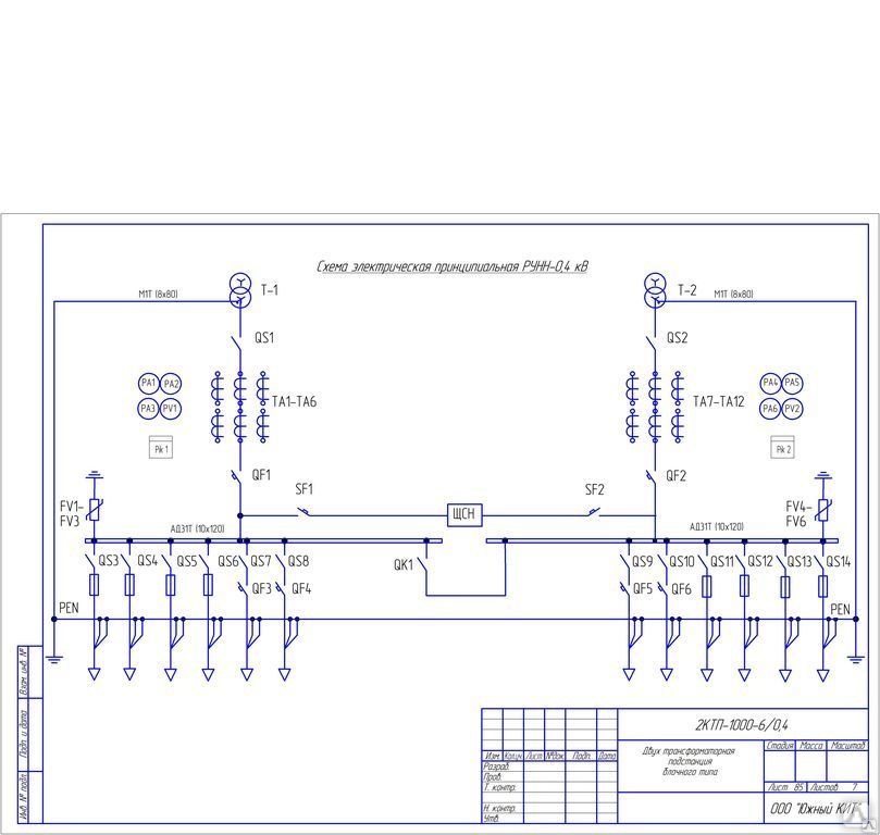
Но чтобы оборудование использовалось эффективно его монтаж должны производитель специалисты. Схема трансформаторной установки Схема небольшой и большой мощности Решения по этому вопросу обычно принимаются с учетом системы электроснабжения объекта и перспектив его развития. При замене любого линейного выключателя обходным необходимо отключить QO, отключить разъединитель перемычки QS3 , а затем использовать QO по его назначению. В этой схеме можно использовать шиносоединительный выключатель для замены выключателя любого присоединения.
За ним следует предохранитель и основной трансформатор. Принципиальные схемы в зависимости от способа изображения делятся на однолинейные и многолинейные, развернутые и совмещенные.
На схеме рис. Схема РУ кВ проходной подстанции. Условные обозначения КТП. Схема РУ между рабочей перемычкой и трансформаторами такая же как у рассмотренной выше ответвительной или концевой подстанции.
Строительство подстанции в Германии от А до Я
https://youtube.com/watch?v=CnDEySTEZv8
Типы
Комплектные трансформаторные подстанции подразделяются на несколько видов:
- столбовые;
- мачтовые;
- киоски;
- внутренние устройства;
- внешние установки.
При внутреннем размещении комплектная трансформаторная подстанция может примыкать к зданию или же находиться в самом помещении.
Столбовые
КТП этого типа устанавливаются на опору электросети. Столбовая трансформаторная подстанция состоит из:
- шкафа для РУНН;
- предохранителей от скачков высокого напряжения;
- кронштейнов;
- платформы;
- силового трансформатора;
- разрядников.
Мощность столбового КТП составляет от 16 до 250 кВА.
На боковой стенке шкафа РУНН размещаются рубильники, при помощи которых можно вручную отключить подачу тока. Рукоятки устанавливаются на фидеры с дугогасительными камерами. К задней стенке шкафа приваривается пластина для соединения РУНН с заземляющим устройством.
Мачтовая
Оборудование для распределения напряжения в данном типе подстанций крепится на опору. Она представляет собой мачту из дерева или железобетона. Опора может быть одиночной или двойной.
Мачтовые КТП небольшие по размеру, хорошо защищены от внешних воздействий и безопасны. Максимальное напряжение составляет 35 кВт. Расстояние от земли до токопроводящих устройств составляет более 3,5 м. Поэтому для мачтовой подстанции не нужно устанавливать дополнительную защиту.
Мачтовая трансформаторная подстанция состоит из:
- РУВН;
- шкафа РУНН с системой ручного или автоматического отключения подачи тока;
- силового трансформатора мощностью до 100 кВА;
- разрядников;
- изоляторов штыревого типа;
- складной лестницы с запирающимся замком;
- рамы;
- площадки для обслуживания.
Силовой трансформатор подключается к источнику электроэнергии при помощи предохранителей и трехполюсного разъединителя.
Киоск
КТП киоскового типа используется для электроснабжения следующих помещений:
- промышленных предприятий;
- сельскохозяйственных организаций;
- коттеджей;
- строительных объектов.
Киоск изготавливается из металла, который способен выдерживать высокие нагрузки. Он состоит из трех основных отсеков: силового трансформатора, РУВН и РУНН.
Минимальная мощность силового трансформатора для данного типа – 25 кВА. Максимальный предел составляет 630 кВА.
Внешней установки
Наружные КТП используются для электроснабжения объектов нефтяной и газовой промышленностей.
Внешние установки представляют собой несколько модулей, которые устанавливаются отдельными блоками. Трансформаторная подстанция наружной установки может совмещаться с автоматизированной системой управления в производстве.
Внутреннего монтажа
КТП внутреннего типа устанавливаются в помещениях. Они подразделяются на три вида:
- Пристроенные. Комплектные подстанции этого вида примыкают к зданию.
- Встроенные. Трансформаторные подстанции размещаются внутри помещения.
- Внутрицеховые. К ним относятся КТП, которые находятся в зданиях промышленных организаций.
Пристроенные
Комплектные трансформаторные подстанции в виде пристройки отделены от основного здания только перегородкой.
Встроенные
Встроенные КТП монтируются на объект блоками или уже в собранном виде. В комплектацию устройства входят:
- РУНН;
- РУВН;
- сухой или масляный силовой трансформатор;
- переходные и соединительные мосты.
Внешне встроенный КТП представляет собой металлический шкаф.
Внутрицеховые
Данный тип подстанций устанавливается внутри промышленных помещений. Конструкция включает в себя шкафы:
- двух силовых трансформаторов;
- РУВН и РУНН;
- линии отвода;
- секционного типа.
Технические условия эксплуатации подстанции
Безопасное, долговечное и надежное использование внутрицеховых подстанций возможно при монтаже на высоте над уровнем моря один километр, не более, и эксплуатации при значении относительной влажности воздуха не более 90% при температуре 20оС.
В случае, если условия эксплуатации на месте отличаются от заявленных, то любые превентивные меры, технические поправки и защитные мероприятия должны непременно согласовываться с производителем.
Оборудование воздушного ввода
- изоляторы опорные;
- изоляторы проходные;
- изоляторы штыревые;
- ограничители перенапряжения.
РУВН и РУНН в КТП, согласно действующим стандартам, должно выдержать определенное число включений и отключений без поломок. Конструкцией КТП должна обеспечиваться четкая работа приборов учёта, измерения, управления, сигнализации во время работы установленных в ней аппаратов. Без демонтажа РУНН есть возможность заменить силовой трансформатор.
Поставляются КТП полностью собранными или же в виде блоков, которые можно собрать на месте и внутри которых находятся уже все коммутационные аппараты. КТП имеют вводы в исполнении категории А и Б по ГОСТ 9920, это воздушные вводы с, которые имеют ограничители перенапряжения со стороны НН и ВН.
Дополнительными затворами снабжены наружные двери КТП, для того чтобы никто не попал внутрь не санкционировано. Разными секретами обладают замки подстанции и в состоянии выдержать более 1000 закрывания и открываний.
Для освещения панелей с измерительными приборами и рукоятками управления аппаратами, эти панели имеют внутри стационарные источники света с напряжением не больше 42 В, а также есть розетка для переносного светильника. В РУНН всё предусмотрено для установки переносного заземления по ГОСТ 21130.
С помощью элементов нагрева в РУНН КТП УХЛ1 и РУВН предусмотрен нагрев воздуха для нормальной работы встроенного оборудования.
Без снятия напряжения с главных цепей КТП предусмотрена установка аппаратов и приборов вспомогательных цепей.
Есть возможность наблюдения за состоянием РУВН с предохранителями высоковольтными. Они имеют указатели срабатывания без снятия напряжения с главных цепей.
Особенности КТП
КТП является сборно-сварной металлоконструкцией исполненной в виде киоска, который имеет остов ( каркас) из высокопрочного закаленного металла.
Все стальные элементы корпуса обработаны специальным составом, который защищает корпус от коррозии и продлевает его срок службы. Окрашена подстанции специальной огнеупорной краской. Для большей надежности подстанция КТП обшита оцинкованными листами толщиной 1,2 мм. Все вышеперечисленные показателя дают в суме продление срока службы корпуса подстанции в несколько раз.
Пол КТП представляет собой поперечный настил (цельный или просечной), который имеет в себе отверстия для ввода и вывода кабеля, а также специальное отверстие для аварийного сброса масла из силового масляного трансформатора.
На подстанции установлены металлические двери с замками которые оснащены защитой от нежелательного взлома (антивандальная система). На дверях КТП предусмотрены окна жалюзийного типа, которые позволяют дополнительно проветривать подстанцию изнутри, что так же препятствует скоплению конденсата внутри подстанции (на стенах и оборудовании) и обеспечивает защиту от перегрева КТП особенно в жаркую погоду. Дополнительным оснащение подстанции являются: система принудительной вентиляции, система уличного и внутреннего освещения КТП, система отопления, сигнализации и видеонаблюдения.
Отсеки КТП:
- отсек распределительного устройства высокого напряжения (РУ ВН)
- отсек распределительного устройства низкого напряжения ( РУ НН)
- отсек силового трансформатора
- соединительное устройство со стороны высшего напряжения (ВН)
- соединительное устройство со стороны низшего напряжения (НН)
- шинопроводы
РУВН
Распределительное устройство высшего напряжения РУВН служит для приема электрического напряжения одного класса напряжения 6-10 кВ.
- высоковольтных предохранителей — используется для защиты электрического комплектующего оборудования, силового трансформатора
- разъединителей — служат для создания видимого разрыва и изоляции частей системы электроустановки
- выключателей нагрузки — предназначены для отключения номинальных нагрузочных токов и сверхтоков при аварийных ситуациях
- КСО 393 с разъединителем — при мощности трансформатора от 25 до 160 кВ
- КСО 393 с выключателем нагрузки — при мощности трансформатора от 250 до 630 кВ
- КСО 203 с наличием вакуумного выключателя — при мощности трансформатора от 1000 до 2500 кВ
- комплектных низковольтных устройств (КНУ) — предназначены для приема и распределения трехфазного электрического переменного тока частотой в 50 Гц номинальным напряжение в 0,4 кВ
Помогла ли вам статья?
Задать вопрос
Пишите ваши рекомендации и задавайте вопросы в комментариях
Схемы комплектных трансформаторных подстанций КТП
Содержание
Классификация электроустановок
Оборудование классифицируется по конструктивным элементам, месту расположения, принципиальным схемам и используемым устройствам.
По виду сборки КТП бывают:
- блочные электроустановки в корпусе из бетона;
- в корпусе, изготовленном из сэндвич-панелей;
- в металлическом корпусе.
По способу обслуживания КТП могут быть с коридором или без него. Электроустройства низшего напряжения разделяются на тупиковые (КТПТ) и проходные (КТПП). Эти оба вида относятся к подстанциям киоскового типа, то есть они считаются передвижным оборудованием.
Похожие материалы
Схема двухтрансформаторной подстанции с первичным напряжением 35 кВ Рис.
Оформить заявку
Но чтобы оборудование использовалось эффективно его монтаж должны производитель специалисты. Схема трансформаторной установки Схема небольшой и большой мощности Решения по этому вопросу обычно принимаются с учетом системы электроснабжения объекта и перспектив его развития. При замене любого линейного выключателя обходным необходимо отключить QO, отключить разъединитель перемычки QS3 , а затем использовать QO по его назначению. В этой схеме можно использовать шиносоединительный выключатель для замены выключателя любого присоединения.
За ним следует предохранитель и основной трансформатор. Принципиальные схемы в зависимости от способа изображения делятся на однолинейные и многолинейные, развернутые и совмещенные.
На схеме рис. Схема РУ кВ проходной подстанции. Условные обозначения КТП. Схема РУ между рабочей перемычкой и трансформаторами такая же как у рассмотренной выше ответвительной или концевой подстанции.
Строительство подстанции в Германии от А до Я
https://youtube.
Типы
Комплектные трансформаторные подстанции подразделяются на несколько видов:
- столбовые;
- мачтовые;
- киоски;
- внутренние устройства;
- внешние установки.
При внутреннем размещении комплектная трансформаторная подстанция может примыкать к зданию или же находиться в самом помещении.
Столбовые
КТП этого типа устанавливаются на опору электросети. Столбовая трансформаторная подстанция состоит из:
- шкафа для РУНН;
- предохранителей от скачков высокого напряжения;
- кронштейнов;
- платформы;
- силового трансформатора;
- разрядников.
Мощность столбового КТП составляет от 16 до 250 кВА. Монтаж электроустановки этого типа имеет свои особенности. Провода, которые соединяют линии электроэнергии и силовой трансформатор, прокладываются в трубах. Каждая труба должна надежно крепиться к опоре. Подключение подстанции к линиям электропередач осуществляется с помощью разъединителя.
На боковой стенке шкафа РУНН размещаются рубильники, при помощи которых можно вручную отключить подачу тока. Рукоятки устанавливаются на фидеры с дугогасительными камерами. К задней стенке шкафа приваривается пластина для соединения РУНН с заземляющим устройством.
Мачтовая
Оборудование для распределения напряжения в данном типе подстанций крепится на опору. Она представляет собой мачту из дерева или железобетона. Опора может быть одиночной или двойной.
Мачтовые КТП небольшие по размеру, хорошо защищены от внешних воздействий и безопасны. Максимальное напряжение составляет 35 кВт. Расстояние от земли до токопроводящих устройств составляет более 3,5 м. Поэтому для мачтовой подстанции не нужно устанавливать дополнительную защиту. Исключением являются только конструкции, которые находятся возле дороги. В этом случае вместе с мачтовой КТП монтируются оградительные тумбы.
Мачтовая трансформаторная подстанция состоит из:
- РУВН;
- шкафа РУНН с системой ручного или автоматического отключения подачи тока;
- силового трансформатора мощностью до 100 кВА;
- разрядников;
- изоляторов штыревого типа;
- складной лестницы с запирающимся замком;
- рамы;
- площадки для обслуживания.
Силовой трансформатор подключается к источнику электроэнергии при помощи предохранителей и трехполюсного разъединителя.
Киоск
КТП киоскового типа используется для электроснабжения следующих помещений:
- промышленных предприятий;
- сельскохозяйственных организаций;
- коттеджей;
- строительных объектов.
Киоск изготавливается из металла, который способен выдерживать высокие нагрузки. Он состоит из трех основных отсеков: силового трансформатора, РУВН и РУНН. Они расположены в отдельных запирающихся шкафах. Открыть отсек при включенном напряжении невозможно из-за особенностей конструкции киоска.
Минимальная мощность силового трансформатора для данного типа – 25 кВА. Максимальный предел составляет 630 кВА.
Внешней установки
Наружные КТП используются для электроснабжения объектов нефтяной и газовой промышленностей.
Внешние установки представляют собой несколько модулей, которые устанавливаются отдельными блоками.
Внутреннего монтажа
КТП внутреннего типа устанавливаются в помещениях. Они подразделяются на три вида:
- Пристроенные. Комплектные подстанции этого вида примыкают к зданию.
- Встроенные. Трансформаторные подстанции размещаются внутри помещения.
- Внутрицеховые. К ним относятся КТП, которые находятся в зданиях промышленных организаций.
Пристроенные
Комплектные трансформаторные подстанции в виде пристройки отделены от основного здания только перегородкой. Дверь в КТП должна соответствовать нормам пожарной безопасности. Материал для перегородки подбирается в зависимости от степени огнестойкости всей конструкции.
Встроенные
Встроенные КТП монтируются на объект блоками или уже в собранном виде. В комплектацию устройства входят:
- РУНН;
- РУВН;
- сухой или масляный силовой трансформатор;
- переходные и соединительные мосты.
Внешне встроенный КТП представляет собой металлический шкаф.
Внутрицеховые
Данный тип подстанций устанавливается внутри промышленных помещений. Конструкция включает в себя шкафы:
- двух силовых трансформаторов;
- РУВН и РУНН;
- линии отвода;
- секционного типа.
Технические условия эксплуатации подстанции
Безопасное, долговечное и надежное использование внутрицеховых подстанций возможно при монтаже на высоте над уровнем моря один километр, не более, и эксплуатации при значении относительной влажности воздуха не более 90% при температуре 20оС. Окружающая внутрицеховую подстанцию среда должна быть лишена значительных концентраций пыли, в особенности, токопроводящей. Недопустимо присутствие в среде взрывоопасных примесей, агрессивных, химически активных и едких веществ и газов, грозящих разрушительными воздействиями на металлические и изоляционные материалы оборудования.
В случае, если условия эксплуатации на месте отличаются от заявленных, то любые превентивные меры, технические поправки и защитные мероприятия должны непременно согласовываться с производителем.
Оборудование воздушного ввода
- изоляторы опорные;
- изоляторы проходные;
- изоляторы штыревые;
- ограничители перенапряжения.
РУВН и РУНН в КТП, согласно действующим стандартам, должно выдержать определенное число включений и отключений без поломок. Конструкцией КТП должна обеспечиваться четкая работа приборов учёта, измерения, управления, сигнализации во время работы установленных в ней аппаратов. Без демонтажа РУНН есть возможность заменить силовой трансформатор. Все болтовые и разборные соединения сборочных единиц КТП снабжены устройствами, препятствующие самопроизвольному отвинчиванию во время работы оборудования.
Поставляются КТП полностью собранными или же в виде блоков, которые можно собрать на месте и внутри которых находятся уже все коммутационные аппараты. КТП имеют вводы в исполнении категории А и Б по ГОСТ 9920, это воздушные вводы с, которые имеют ограничители перенапряжения со стороны НН и ВН.
Дополнительными затворами снабжены наружные двери КТП, для того чтобы никто не попал внутрь не санкционировано.
Для освещения панелей с измерительными приборами и рукоятками управления аппаратами, эти панели имеют внутри стационарные источники света с напряжением не больше 42 В, а также есть розетка для переносного светильника. В РУНН всё предусмотрено для установки переносного заземления по ГОСТ 21130.
С помощью элементов нагрева в РУНН КТП УХЛ1 и РУВН предусмотрен нагрев воздуха для нормальной работы встроенного оборудования. Отключение и включение всех нагревательных устройств, производиться автоматически или при желании вручную.
Без снятия напряжения с главных цепей КТП предусмотрена установка аппаратов и приборов вспомогательных цепей.
Есть возможность наблюдения за состоянием РУВН с предохранителями высоковольтными. Они имеют указатели срабатывания без снятия напряжения с главных цепей.
Особенности КТП
КТП является сборно-сварной металлоконструкцией исполненной в виде киоска, который имеет остов ( каркас) из высокопрочного закаленного металла.
Все стальные элементы корпуса обработаны специальным составом, который защищает корпус от коррозии и продлевает его срок службы. Окрашена подстанции специальной огнеупорной краской. Для большей надежности подстанция КТП обшита оцинкованными листами толщиной 1,2 мм. Все вышеперечисленные показателя дают в суме продление срока службы корпуса подстанции в несколько раз.
Пол КТП представляет собой поперечный настил (цельный или просечной), который имеет в себе отверстия для ввода и вывода кабеля, а также специальное отверстие для аварийного сброса масла из силового масляного трансформатора.
На подстанции установлены металлические двери с замками которые оснащены защитой от нежелательного взлома (антивандальная система). На дверях КТП предусмотрены окна жалюзийного типа, которые позволяют дополнительно проветривать подстанцию изнутри, что так же препятствует скоплению конденсата внутри подстанции (на стенах и оборудовании) и обеспечивает защиту от перегрева КТП особенно в жаркую погоду.
Отсеки КТП:
- отсек распределительного устройства высокого напряжения (РУ ВН)
- отсек распределительного устройства низкого напряжения ( РУ НН)
- отсек силового трансформатора
- соединительное устройство со стороны высшего напряжения (ВН)
- соединительное устройство со стороны низшего напряжения (НН)
- шинопроводы
РУВН
Распределительное устройство высшего напряжения РУВН служит для приема электрического напряжения одного класса напряжения 6-10 кВ.
- высоковольтных предохранителей — используется для защиты электрического комплектующего оборудования, силового трансформатора
- разъединителей — служат для создания видимого разрыва и изоляции частей системы электроустановки
- выключателей нагрузки — предназначены для отключения номинальных нагрузочных токов и сверхтоков при аварийных ситуациях
- КСО 393 с разъединителем — при мощности трансформатора от 25 до 160 кВ
- КСО 393 с выключателем нагрузки — при мощности трансформатора от 250 до 630 кВ
- КСО 203 с наличием вакуумного выключателя — при мощности трансформатора от 1000 до 2500 кВ
- комплектных низковольтных устройств (КНУ) — предназначены для приема и распределения трехфазного электрического переменного тока частотой в 50 Гц номинальным напряжение в 0,4 кВ
Помогла ли вам статья?
Задать вопрос
Пишите ваши рекомендации и задавайте вопросы в комментариях
Alpine KTP-445U Схема подключения Усилитель мощности звука Автомобильная аудиосистема Alpine Electronics, другие, электроника, другие, электрические провода Кабель png
PNG Теги
- электроника,
- Кабель электрических проводов,
- ,
- Разъем RCA,
- Адаптер переменного тока,
- громкоговоритель,
- Блок питания,
- Радиоприемник,
- технология,
- Автомобильная аудиосистема,
- Адаптер питания для ноутбука,
- ,
- ,
- Аксессуар для электроники,
- схема,
- ,
- Жгут проводов,
- аудио усилитель мощности,
- усилитель,
- альпийская электроника,
- Схема подключения,
- png,
- прозрачный,
- скачать бесплатно
кабель
Головное устройство
фурнитура
Усилитель класса
Информация PNG
-
Размеры
- 500x500px
-
Размер файла
- 124,58 КБ
-
Тип MIME
- Изображение/png
Скачать этот PNG ( 124.
Изменение размера онлайн png
ширина (пкс)
высота (пкс)
Лицензия
Некоммерческое использование, DMCA Свяжитесь с нами
-
Шнур питания Адаптер переменного тока Удлинители для ноутбуков Электрический кабель, Ноутбук, электроника, адаптер, кабель png
1204x800px
6790,32 КБ -
Зарядное устройство Sonim Technologies Электрический аккумулятор Аксессуары для мобильных телефонов Sonim XP7, настенное зарядное устройство, электроника, адаптер, кабель png
600x479px
152,69 КБ -
Зарядное устройство iPhone Электрический кабель Провод Сетевое оборудование, Проектор, электроника, компьютер, адаптер png
1200x900px
1,01 МБ
org/ImageObject»>
-
Электрический кабель Электричество Электрические провода и кабели Электротехника, розетка, электроника, электрические провода Кабель, кабель png
1500x1197px
1,41 МБ -
Электрические провода и кабели Электрический кабель Электричество Электронная схема, ELECTRICO, Электрические провода Кабель, кабель, электричество png
565x535px
211,85 КБ -
Зарядное устройство для ноутбука Адаптер переменного тока Dell, Ноутбук, электроника, адаптер, электронное устройство png
1000x1000px
524,78 КБ
org/ImageObject»>
-
Зарядное устройство Адаптер переменного тока Ноутбук Dell, Ноутбук, электроника, компьютер, адаптер png
1000x590px
574,4 КБ -
Зарядное устройство Адаптер переменного тока Преобразователи питания для ноутбуков, запчасти, электроника, электрические провода Кабель, адаптер png
1400x986px
401,46 КБ -
Блок питания Импульсный блок питания Преобразователи питания Электроэнергия Постоянный ток, батарея, электроника, электрические провода Кабель, электронное устройство png
1000x1000px
1,03 МБ
org/ImageObject»>
-
Электрик Электричество Ремонт сантехники Электрические провода и кабели, электрические, электроника, сервис, электрические провода Кабель png
1200x1200px
657,65 КБ -
Электроника Усилитель мощности звука Стереофонический звук Микрофон, Audio Power, электронное устройство, звук, аудио оборудование png
500x500px
165,07 КБ -
Разъем VGA для ноутбука Электрический кабель HDMI Компьютерные мониторы, мониторы, электроника, компьютер, адаптер png
550x550px
252,07 КБ
org/ImageObject»>
-
Зарядное устройство Адаптер переменного тока Блок питания Ноутбук, Ноутбук, электроника, компьютер, адаптер png
1909x1013px
1,28 МБ -
Зарядное устройство Адаптер переменного тока Ноутбук Камера, Ноутбук, электроника, объектив камеры, адаптер png
1500x1500px
1,19 МБ -
Адаптер переменного тока Преобразователи питания Зарядное устройство ИБП, комплект камеры видеонаблюдения dvr, электроника, электрические провода Кабель, адаптер png
1008x1019px
526,53 КБ -
Зарядное устройство Lightning Apple USB MFi Program, молния, электроника, адаптер, кабель png
1000x1340px
363,94 КБ
org/ImageObject»>
-
Коммунальная почта, Электрические провода и кабели Электричество Столб электросети Напряжение, столб, угол, электрические провода Кабель, слова Фразы png
853x1280px
575,89 КБ -
HDMI Электрический кабель Электрический разъем DisplayPort IEEE 1394, USB, электроника, кабель, HDMI png
1024x864px
393,95 КБ -
Разъем RCA Компонентное видео HDMI Композитное видео Телевидение высокой четкости, Компонентное видео, электроника, кабель, разъем vGA png
768x768px
390,93 КБ -
Автоматический переключатель Электрические выключатели Контактор Электрические провода и кабели Схема подключения, электроэнергетическая техника, электрические провода, кабель, реле, электричество png
860x898px
675,66 КБ
org/ImageObject»>
-
черный пульт дистанционного управления, телевизионная приставка Пульты дистанционного управления IPTV Разъем RCA Батарея AAA, пульт дистанционного управления телевизором, телевидение, электроника, электронное устройство png
732x600px
283,14 КБ -
Электричество Электрические провода и кабели Электрический кабель Электротехника, прочее, электроника, электрические провода Кабель, аксессуары png
1000x650px
355,77 КБ -
Samsung Galaxy S8 Зарядное устройство USB-C Quick Charge, USB, электроника, адаптер, кабель png
2494x1464px
4,72 МБ
org/ImageObject»>
-
черное дорожное зарядное устройство Samsung, зарядное устройство Samsung Galaxy S8 USB-C Quick Charge, USB, электроника, адаптер, кабель png
2296x1548px
4,33 МБ -
Электрический кабель Разъем для телефона Разъем RCA Cavo audio, миндалины, кабель, длина, стереофонический звук png
1380x833px
536,83 КБ -
Корпус громкоговорителя Стереофонический усилитель звука Сабвуфер, Музыкальные колонки, три черных динамика, электроника, динамик, музыкальная нота png
1000x750px
328,67 КБ
org/ImageObject»>
-
Микрофон Электрический кабель Разъем XLR Телефонный разъем Аудио и видео интерфейсы и разъемы, провода, электроника, кабель, звук png
1600x900px
1,43 МБ -
Усилитель мощности звука Системы громкой связи Громкоговоритель, усилители, электроника, стереофонический звук, звук png
800x800px
373,43 КБ -
Вилки и розетки переменного тока Электрические выключатели Схема подключения Электрические провода и кабели Блокировочное реле, розетка, электроника, электрические провода Кабель, электронное устройство png
566x566px
204,36 КБ
org/ImageObject»>
-
Адаптер Электрический кабель iPhone 7 AirPods Lightning, молния, электроника, кабель, адаптер png
900x900px
532,32 КБ -
Электрический кабель Электрические провода и кабели Кабель категории 5 Шнур питания, другие, Электрические провода Кабель, кабель, витая пара png
1200x1200px
356,27 КБ -
Зарядное устройство для ноутбука Адаптер переменного тока Dell, Ноутбук, электроника, компьютер, адаптер png
1024x772px
452,78 КБ -
Электрические провода и кабели Свеча зажигания Электрический кабель Схема подключения, автозапчасти, электроника, электрические провода Кабель, кабель png
1400x1400px
373,8 КБ
org/ImageObject»>
-
Сабвуфер Car Sound Автомобильная аудиосистема, автозвук, электроника, автомобиль, динамик png
667x508px
299,15 КБ -
Зарядное устройство USB-C Quick Charge для мобильных телефонов, USB, электроника, кабель, адаптер png
3000x2000px
1,87 МБ -
Зарядное устройство для iPhone Lightning Адаптер переменного тока, Iphone, угол, белый, электроника png
1000x1000px
93,13 КБ -
Зарядное устройство для iPhone, Iphone, электроника, адаптер, кабель png
2400x1964px
702,64 КБ
org/ImageObject»>
-
Корпус громкоговорителя Активные динамики Аудио Системы громкой связи, Динамик, электроника, динамик, автомобильный сабвуфер png
1200x750px
351,18 КБ -
провод с разноцветным покрытием, Электрический кабель Электрические провода и кабели Силовой кабель Электрик, электрический, Электрические провода Кабель, кабель, электричество png
501x525px
137,52 КБ
Электрический кабель Электрические провода и кабели Схема подключения Электроника, провода и кабели, электроника, электрические провода Кабель, кабель png
800x765px
660,86 КБ
Преобразователи питания Разветвители и подавители перенапряжения Электрические выключатели Вилки и розетки переменного тока Электрические провода и кабели, освещение, электрические провода Кабель, электронное устройство, электрический разъем png
853x1000px
210,89КБ
Электрические провода и кабели Электрический кабель Домашняя проводка Электричество, Удлинитель, электроника, электрические провода Кабель, кабель png
540x540px
53,82 КБ
Сабвуфер MTX Audio Корпус громкоговорителя Мощность звука, аудиодинамики, электроника, объектив камеры, динамик png
1872x1872px
2,31 МБ
Зарядное устройство Адаптер переменного тока Micro-USB, мобильное зарядное устройство, электроника, адаптер, кабель png
534x549px
190,83 КБ
Сетевые кабели Электрический кабель Витая пара Компьютерная сеть Кабель категории 5, СЕТЕВЫЕ КАБЕЛИ, компьютерная сеть, адаптер, кабель png
2048x1433px
888,47 КБ
Гибкий кабель Электрический кабель Электрические провода и кабели Электричество, стальная проволока, электроника, электрические провода Кабель, кабель png
635x635px
166,07 КБ
Электрический кабель Силовой кабель Электрические провода и кабели Электричество Товары и услуги, электрический провод, карандаш, электрические провода Кабель, кабель png
960x640px
413,92 КБ
Услуги электрика Электротехника Вилки и розетки переменного тока, Электрооборудование, электроника, сервис, электрические провода Кабель png
966x572px
608,87 КБ
HTC U11 Зарядное устройство HTC 10 USB-C Quick Charge, Зарядное устройство USB, электроника, адаптер, кабель png
749x708px
192,55 КБ
Автомобильные GPS-навигаторы ISO 7736 Pioneer Corporation Автомобильное головное устройство, mp3, электроника, автомобиль, медиаплеер png
700x700px
272,67 КБ
ALPINE KTP-445U РУКОВОДСТВО ПОЛЬЗОВАТЕЛЯ Pdf Скачать
Скачать
Оглавление
Добавить в мои руководства
Добавить эту страницу в закладки
Руководство будет автоматически добавлено в «Мои руководства»
распечатайте эту страницу
Содержание
19
-
страница
из
19 -
Содержание
-
Оглавление
-
Закладки
Advertisement
Table of Contents
-
Service Care
-
Important Notice
-
Specifications
-
Accessories
- Installation
-
Installation with Mounting Brackets
- Connections
- Switch Settings
-
Контрольный список соединений
-
Типовые соединения системы
-
Система ввода RCA
-
Вход уровня динамика
-
Автономная система
-
Garantie Limitee
-
Ограниченная гарантия
-
Автомобильный усилитель Alpine KTP-445 — Руководство по установке питания магнитолы
Руководство по установке (4 страницы)
-
Автомобильный усилитель Alpine KTP-445U Руководство пользователя
Блок питания головного устройства (2 страницы)
-
Усилитель Alpine KTP-190U Инструкция
(10 страниц)
-
Усилитель Alpine KTA-200M Краткое руководство пользователя
Моноусилитель мощности (7 стр.
)
-
Усилитель Alpine MRD-M301 Руководство пользователя
Alpine mrd-m301: руководство пользователя (20 страниц)
-
Усилитель Alpine MRV-F340 Руководство пользователя
5/4/3-канальный усилитель мощности 4/3/2-канальный усилитель мощности (21 страница)
-
Усилитель Alpine MRP-M350 Руководство пользователя
Руководство по эксплуатации монофонического усилителя мощности Alpine mrp-m350 (12 страниц)
-
Усилитель Alpine MRP-M450 Руководство пользователя
Руководство пользователя Alpine моноусилитель мощности mrp-m650, mrp-m450 (16 страниц)
-
Усилитель Alpine MRV-M500 Руководство по обслуживанию
(26 страниц)
-
Усилитель Alpine 3527 Руководство по установке и эксплуатации
(8 страниц)
-
Усилитель Alpine PDX-5 Руководство пользователя
4 канала + моно усилитель мощности (12 стр.
)
-
Усилитель Alpine PDP-E800DSP Руководство пользователя
8-канальный усилитель мощности DSP класса D (40 стр.)
-
Усилитель Alpine PDX-4.100M Руководство пользователя
4-канальный усилитель мощности (16 стр.)
-
Усилитель Alpine MRP-M850 Руководство пользователя
Руководство по эксплуатации монофонического усилителя мощности Alpine mrp-m850 (16 страниц)
-
Усилитель Alpine X-A90M Руководство пользователя
Моноусилитель мощности 4-канальный усилитель мощности 4 канала + монофонический усилитель мощности (28 стр.
3
3
3
3
Содержание
Предыдущая страница
Следующая страница
Содержание
)
) 
Добавить комментарий